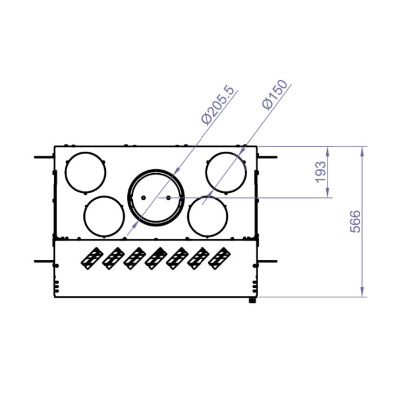
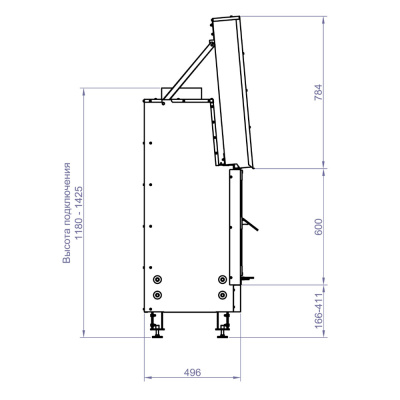
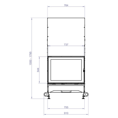
Stav - это производитель